25
Dec
2025 | Column
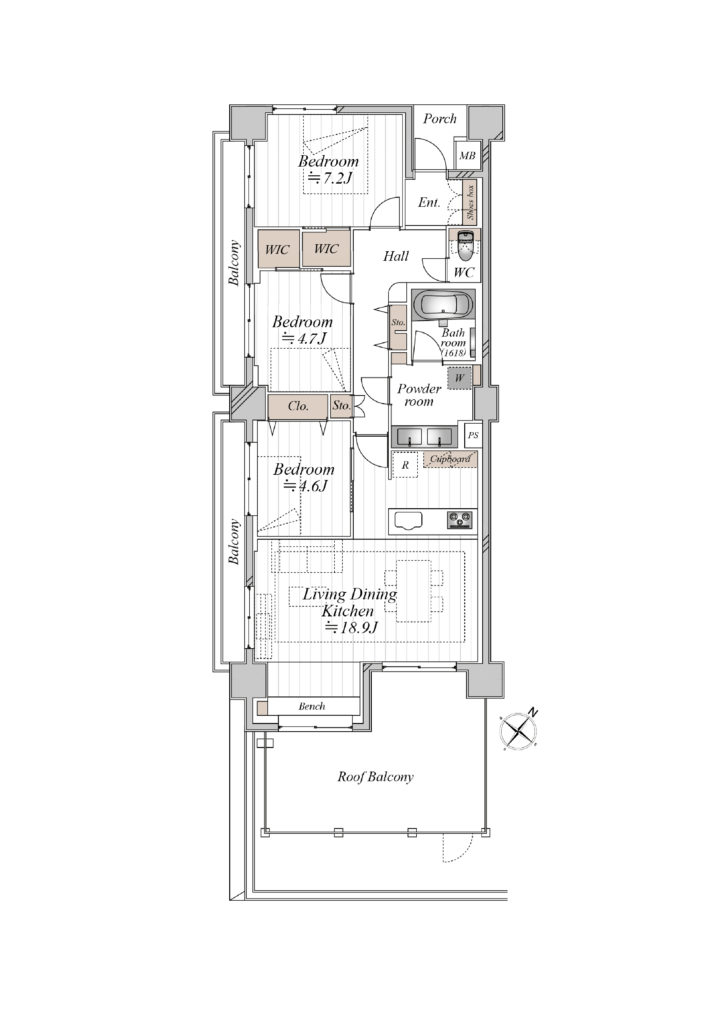
MUSUBUのお部屋ルームツアー|#07 素材が響き合う3LDK
MUSUBUのリノベーション施工事例をご紹介するルームツアー。
今回は、目黒川沿い・ルーフバルコニー付きの大人の余裕が感じられる一室よりお届けします!
※掲載中の物件情報は、公開時点の内容となっております。成約済みや条件変更の場合もございますので、最新の状況につきましては、お気軽にお問い合わせください。
玄関
シンプルな木目調の下足収納と丸いブラケットライトがお出迎え。
家に帰るたびほっとできる、やわらかな包容力のある玄関です。
▼廊下には小さなカウンターとライトが。お気に入りのアートや写真、オブジェを飾っても楽しいですね。
リビング・ダイニング
▼ブラックチェリーの天然木を使用したベンチは、リブ加工でさらに魅力が引き立つ。
照明・ニッチ収納で好きなものに囲まれながら、あたたかなおうち時間を過ごせそうです。
▼グレーのフロアタイルと壁面タイルに、ミラタップのキッチン「ウィッテ」がマッチ。
すっきりしていながらもどこか印象的なLDKに大人の余裕を感じます。
キッチン
▼キッチンはノイズレスなデザインがスタイリッシュ。
カップボード付きで収納力も申し分なく、お引っ越し後すぐから快適に過ごせそうです◎
ルーフバルコニー
▼リビングから出られるルーフバルコニーは、テーブルセットを設置できる広さ。
屋外でゆったり朝ごはんを食べるのも素敵ですね。
洗面室
▼ノイズレスなミラーが洗練された印象の洗面台。
ボウルが2つあるので忙しい朝も家族仲良く支度ができそうです。
▼可動棚にタオルを置けば、必要なときにさっと取り出せて便利なのが嬉しい。
浴室
▼浴室パネルは落ち着きあるカラーリングが魅力的。
キッチンとも親和性の高い色味でお家全体に統一感が生まれています。
いかがでしたか?今回は大人な遊び心が魅力的な目黒川沿いのお部屋のご紹介でした!
MUSUBUは住む人の生活を想像しながら、新たな暮らしを日々生み出しています。
ぜひ、ルームツアー#05、ルームツアー#06 もチェックしてみてくださいね。
※掲載中の物件情報は、公開時点の内容となっております。成約済みや条件変更の場合もございますので、最新の状況につきましては、お気軽にお問い合わせください。